Описание
Представляем вам новый типовой проект дома – комфортабельный коттедж, в котором, можно не только проводить время в кругу семьи, но и собираться с друзьями в удобной гостиной, из которой предусмотрен удобный выход на летнюю террасу.
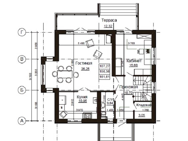
На первом этаже дома предусмотрена большая гостиная, объединенная с кухней, кабинет с отдельным выходом на террасу. Предусмотрено три отдельных выхода с противоположных сторон дома, чтобы повысить удобство в эксплуатации.
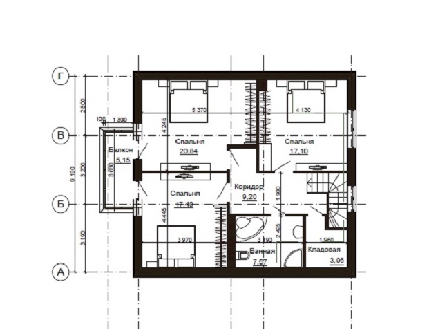
На втором этаже расположены три спальных комнаты, две из которых имеют выходы на балкон. Имеется просторная ванная комната и отдельный сан. узел.
Отличительные особенности:
- Надежность: проект разработан для IIIБ климатического района и сейсмичностью площадки строительства 7 баллов.
- Улучшенная планировка: 2 этажа, 4 комнаты, 3 входа – парадный из гостиной и кабинета, балкон на 2 спальни, сан. узлы на каждом этаже.
- Фундаменты: монолитная ж.б. лента шириной 400 мм и 600 мм в основании. Заглубление ленты фундамента - на 1000 мм ниже планировочной отметки земли.
- Наружные стены выполнены из керамического кирпича, толщиной 380 мм. и наружным слоем из утеплителя - менераловатные плиты, толщиной 50 мм с тонкой штукатуркой, перегородки из кирпича толщиной 120 мм.
- Кровля скатная, покрытая металлочерепицей, с организованным водоотводом по желобам и водосточным трубам на отмостку здания.
